トップ
コンセプト
ラインナップ
新築
リフォーム
リノベーション
エクステリア
外壁リフォーム
店舗改装
施工事例
Maman(新築)
DAYFIELD(新築)
リフォーム
リノベーション
エクステリア
外壁リフォーム
店舗改装
その他
会社概要
会社案内
個人情報保護方針
よくあるご質問
季刊誌
メデイア掲載
情報通信
北条建装株式会社
トップ
コンセプト
ラインナップ
新築
リフォーム&リノベーション
エクステリア
外壁リフォーム
店舗改装
施工事例
Maman(新築)
DAYFIELD(新築)
リフォーム&リノベーション
エクステリア
外壁リフォーム
店舗改装
その他
会社概要
会社案内
個人情報保護方針
よくあるご質問
季刊誌
メデイア掲載
情報通信
お問い合わせ
資料請求
本社:
〒674-0057 兵庫県明石市大久保町高丘1ー15-6
事務所:
〒674-0051 兵庫県明石市大久保町大窪2725ー3
TEL:0120-934-118
Reform&Renovation
施工事例
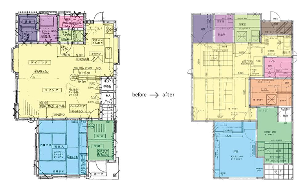
多趣味なご夫婦のセカンドライフ
多趣味なご夫婦のセカンドライフを満喫できるように、キッチンダイニングを中心に、夫婦それぞれのアトリエをつくりインテリアもこだわりをすべてかなえた、素晴らしいリノベーションが完成しました。
敷地面積:約40坪
総床面積:約32坪
間取:4LDK
家族構成:ご夫婦
\
n
works
Reform&Renovation
こだわりの木ッチンリフォーム
そろそろリフォーム
賃貸マンションのリフォーム
暮らしに合わせたリフォームで、快適で楽しい毎日に。
間接照明で雰囲気のあるお部屋
夫婦2 人これから先を考えたリフォーム
リビング横の和室を洋室に。段差をなくした介護リフォーム。
築20年。一気に水廻り設備交換
キッチンのリフォーム 「ゆったり広々キッチンに大変身!」
L型キッチンをリフォーム
趣味を楽しみたい夫婦のこだわりリフォーム
マンションリフォーム 「フルリフォームでさようなら昭和!」
マンションリノベーション「和室をなくして広々リビングに」
マンションリノベーション「回遊動線が2ヵ所ある間取りに」
ポイントリフォーム 柱型と梁型のクロス貼替
浴室・洗面・トイレのリフォーム
スケルトンからのリノベーション
床の間を大容量の本棚に
介護リフォーム
2階を気分一新
中古マンションを購入してリフォーム
新築後初めての外壁塗り替え工事
子供部屋を2つに分けました
仮住まいをして一斉に全室リフォーム
多趣味なご夫婦のセカンドライフ
L型キッチンで収納たっぷり。 和室の畳をフローリングに!
バルコニーもリフォーム!!
モデルルームのようなLDK
築15年の4LDK分譲マンションをフルリフォーム
中古マンションをお洒落に機能的に
中古住宅をMaman風にリノベーションした須磨の家
works
その他施工事例
住宅
エクステリア
外壁
店舗
その他
Maman(新築)
Dayfield(新築)